
Descriere produs:
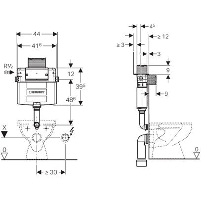
Noul rezervor incastrat de 12 cm Geberit Omega beneficiaza de inaltimi constructive de 82 cm şi 98 cm si 106 prin aceasta oferind optiuni suplimentare in designul camerei de baie. De exemplu, puteti planifica constructia unor pereti de gips-carton pe inaltime partiala a camerei, fie in fata peretilor solizi, fie ca pereti de partitionare, avand polite pentru articole cosmetice sau de toaleta, ba chiar puteti instala vasul WC sub un acoperis inclinat de mansarda ori sub un parapet de fereastra. Sunt potrivite actionarii frontale sau de sus. Noul rezervor permite instalarea unor modele de clapete de actionare elegante, de mici dimensiuni.
Inaltime de instalare: 98 cm
Izolat complet impotriva condensului
Conexiune la apa prin stanga
Debit: 0,1-10 bari
Volum rezervor:
- setare din fabrica: 6 si 3 litri
- volum mic de spalare: 3-4 litri
- volum mare de spalare: 4.5/6/7.5 litri
Include:
- racord pentru alimentare cu apa R1/2' cu robinet de trecere si ventil, compatibil cu produsele MeplaFix
- conducta de evacuare
- capac de protectie pentru deschiderea de service
- 2 tije pentru fixarea reyervorului
- set de conexiune pentru vas de WC, Ø90 mm
- mufa adaptoare, Ø90/110 mm
- material pentru fixare
Nu include placa de actionare care se comanda separat