
Descriere produs:
ATENTIE !
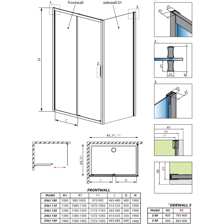
In standard, cabinele de dus sunt gandite pentru a fi montate pe o cadita de dus cu dimensiuni specifice si aceste dimensiuni sunt date in denumirea cabinei de dus. Dimensiunile reale de gabarit ale cabinei sunt putin mai mici decat dimensiunile nominale date in denumirea articolului . Daca intentionati sa instalati cabina direct pe podea, acordati atentie dimensiunilor totale (X1, X2) si dimensiunilor axei panoului (Y1, Y2), care sunt date în schita tehnica
Cabina de dus formata din 1 usa glisanta + perete lateral fix
Dimensiuni: 1000x900xH1900 mm
Material: sticla securizata transparenta
Grosime sticla: 5 mm
Finisaj profil: negru
Caracteristici:
- sistemul de fixare de perete cu profile - permite preluarea curburii peretelui
- tehnologie EasyClean: strat de protectie cu proprietati hidrofuge, mentine curata suprafata si permite intretinerea usoara a acesteia
- montaj reversibil